Casa indipendente in vendita

Vezzano Sul Crostolo, Via Provinciale - La Fornace
€ 150.000
6 locali 6 locali
397 Mq 397 Mq
3 bagni 3 bagni

Casa indipendente in vendita

Vezzano Sul Crostolo, Via Provinciale - La Fornace

Descrizione annuncio

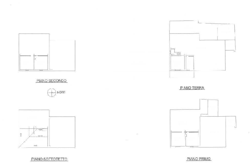
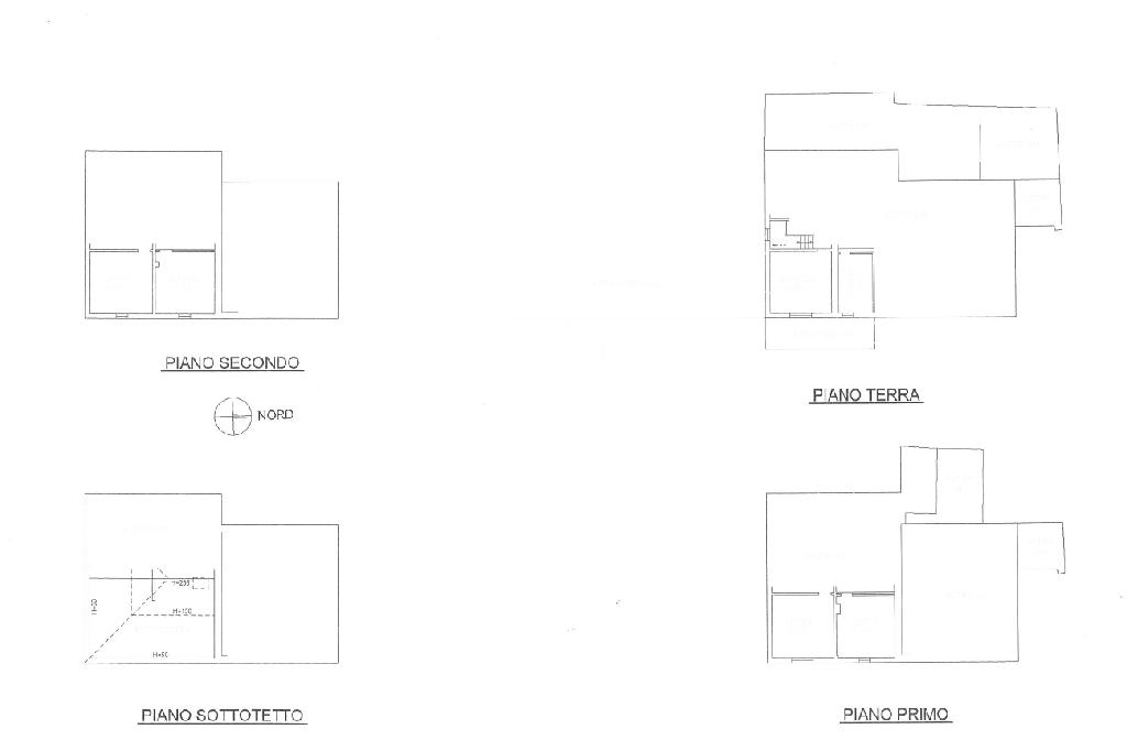
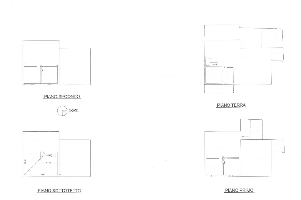
Proponiamo in vendita a Vezzano sul Crostolo, località La Fornace, casa indipendente bifamiliare da ristrutturare su 3 livelli con capannone / deposito, stalla e ampio cortile privato di circa 850mq.

Circondata dal verde delle colline e da un bellissimo torrente,

l'abitazione attualmente si struttura al piano terra con ingresso, doppia zona giorno, cucina, bagno e sottoscala, al primo piano troviamo la zona notte con 3 camere da letto e un guardaroba, al secondo e ultimo piano troviamo ulteriori 4 camere da letto, due camere da letto e ulteriore bagno con balcone.

Possibilità di abbattere la soluzione e ricostruzione con nuovo intervento, opportunità di acquisto ulteriore terreno.

L'accesso privato all'immobile attualmente non è consentito poiché il ponte che attraversava il torrente non è più accessibile.

Mostra tutto

Nelle vicinanze

Bar Bar
Bio Bar
2,5 Km
Ristoranti Ristoranti
Trattoria La Campola
700 m
Ristorante Da Mandarein
2,1 Km
Osteria Al Pan Brusee
2,6 Km
Mostra tutto

Caratteristiche

Rif.:
61116019
Piano:
Su più livelli di 3
Totale piani:
3
Box:
1
Camere da letto:
4
Arredamento:
Assente
Mostra tutto
Prezzo Prezzo
€ 150.000
Rata mutuo Rata mutuo
€ 691 / mese
Spese annue Spese annue
€ 0
Proponi il tuo prezzoProponi il tuo prezzo

Classe Energetica

G
G
G
G
G
G
G
G
G
EP invernale del fabbricato:
EP estiva del fabbricato:
Anno di costruzione:
1950
Riscaldamento:
Assente

Ti interessa visionare l'immobile?

Fissa un appuntamento  Fissa un appuntamento

Richiedi informazioni

* Questi campi sono obbligatori

Calcola il tuo mutuo

Semplice e senza impegno
Anticipo

( % )
Mutuo

( % )

pochi semplici passi

inserisci i tuoi dati
Questionario completato
Grazie per aver richiesto un appuntamento senza impegno con un nostro Consulente del Credito e Assicurativo.

Hai inserito correttamente tutti i dati necessari e a breve riceverai una e-mail con un link da convalidare per inviare i tuoi dati.
Affiliato
Agenzia Immobiliare Albinea Srl
Via Leonardo Da Vinci, 2 42020 Albinea (RE)

Il nostro staff


  • Andrea Cattabiani
    Collaboratore

  • Giovanni Paolucci
    Affiliato

  • Andrea Paolucci
    Coordinatore

  • Anna Arpino
    Collaboratrice

  • Davide Piacenti
    Affiliato
Via Leonardo Da Vinci, 2 42020 Albinea (RE)
Zona: Scandiano-Albinea-Canali
Mostra su mappa
Orari: dal lunedì al venerdì 9:00 - 19:45 in orario continuato. Sabato 9:00 - 13.00, pomeriggio su appuntamento.
Affiliato
Agenzia Immobiliare Albinea Srl
Via Leonardo Da Vinci, 2 42020 Albinea (RE)

2025 Tecnocasa Franchising S.p.A. - P. IVA 08365160152 - Via Monte Bianco 60/A 20089 Rozzano (MI). Ogni agenzia ha un proprio titolare ed è autonoma. Privacy policy | Policy utilizzo | Cookie policy