Casa indipendente in vendita

Albinea, Via moro
€ 638.000
5 locali 5 locali
406 Mq 406 Mq
4 bagni 4 bagni

Casa indipendente in vendita

Albinea, Via moro

Descrizione annuncio

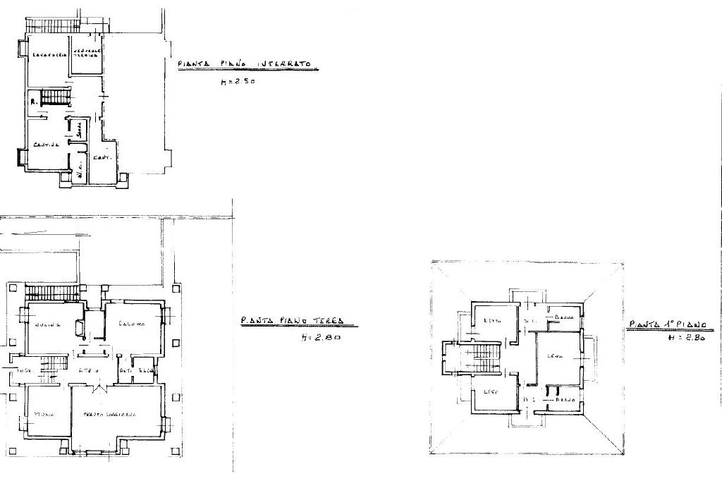
Proponiamo in vendita in posizione centrale ad Albinea, villa indipendente con giardino privato, situata in un quartiere residenziale e tranquillo.

Costruita nel '90 la casa è strutturata su tre livelli, al primo (piano terra) troviamo un accogliente cucina con caminetto, luminosa sala da pranzo, un ampio salotto, uno studio e un bagno.

Salendo le scale, arriviamo su un disimpegno che divide la zona notte in tre grandi camere matrimoniali con parquet in legno e balcone, di cui una con bagno privato. Atro servizio presente sul piano.

Al piano interrato invece: lavanderia, cantina, altro studio con bagno e garage triplo.

A disposizione dell'abitazione due posti auto privati, presente allarme.

Mostra tutto

Nelle vicinanze

Trasporto pubblico Trasporto pubblico
Albinea - Via P. Giovanni XXIII
Albinea - Via P. Giovanni XXIII
90 m
Albinea - Localita' Caselline
Albinea - Localita' Caselline
280 m
Scuole Scuole
Scuola media statale "L. Ariosto"
520 m
Scuole elementeri Albinea Fola
1,4 Km
Farmacia Farmacia
Farmacia Comunale
520 m
Farmacia
1,3 Km
Ospedali Ospedali
Residenza sanitaria riabilitativa - ex ospedale Papa Giovanni XXIII
320 m
Supermercati Supermercati
Conad
1,1 Km
Conad City
2,7 Km
Negozi Negozi
Davoli & C.
800 m
Pane del Borgo
1,3 Km
Bar Bar
Bar Lando
290 m
Bar
640 m
Caffé Liberty
1,3 Km
Art Cafè
1,3 Km
Gelateria Pam Pam
1,3 Km
Ristoranti Ristoranti
Osteria Gòst e Lambròsc
390 m
eco del Mare
1,2 Km
Agriturismo La Razza
1,6 Km
Ristorante pizzeria La Fola
1,9 Km
Ristorante Ca' Longa
2,7 Km
Mostra tutto

Caratteristiche

Rif.:
61013724
Piano:
Su più livelli di 3
Totale piani:
3
Box:
3
Posti auto:
2
Balconi:
4
Mostra tutto
Prezzo Prezzo
€ 638.000
Rata mutuo Rata mutuo
€ 2.941 / mese
Spese annue Spese annue
€ 0
Proponi il tuo prezzoProponi il tuo prezzo

Classe Energetica

F
F
F
F
F
F
F
F
F
EP globale non rinnovabile:
400.00 kW h/m² anno
EP globale rinnovabile:
5.00 kW h/m² anno
EP invernale del fabbricato:
EP estiva del fabbricato:
Anno di costruzione:
1990
Riscaldamento:
Autonomo
Tipo impianto:
A radiatori
Tipo alimentazione:
Metano

Ti interessa visionare l'immobile?

Fissa un appuntamento  Fissa un appuntamento

Richiedi informazioni

* Questi campi sono obbligatori

Calcola il tuo mutuo

Semplice e senza impegno
Anticipo

( % )
Mutuo

( % )

pochi semplici passi

inserisci i tuoi dati
Questionario completato
Grazie per aver richiesto un appuntamento senza impegno con un nostro Consulente del Credito e Assicurativo.

Hai inserito correttamente tutti i dati necessari e a breve riceverai una e-mail con un link da convalidare per inviare i tuoi dati.
Affiliato
Agenzia Immobiliare Albinea Srl
Via Leonardo Da Vinci, 2 42020 Albinea (RE)

Il nostro staff


  • Andrea Cattabiani
    Collaboratore

  • Giovanni Paolucci
    Affiliato

  • Andrea Paolucci
    Coordinatore

  • Anna Arpino
    Collaboratrice

  • Davide Piacenti
    Affiliato
Via Leonardo Da Vinci, 2 42020 Albinea (RE)
Zona: Scandiano-Albinea-Canali
Mostra su mappa
Orari: dal lunedì al venerdì 9:00 - 19:45 in orario continuato. Sabato 9:00 - 13.00, pomeriggio su appuntamento.
Affiliato
Agenzia Immobiliare Albinea Srl
Via Leonardo Da Vinci, 2 42020 Albinea (RE)

2025 Tecnocasa Franchising S.p.A. - P. IVA 08365160152 - Via Monte Bianco 60/A 20089 Rozzano (MI). Ogni agenzia ha un proprio titolare ed è autonoma. Privacy policy | Policy utilizzo | Cookie policy